Zur Navigation wechseln Zum Inhalt wechseln Zum Footer wechseln
Außen Vorne Links

Vielseitig nutzbare Räumlichkeiten in Detmold – Klinik, Praxis, Büro oder Lager

Kategorie

Objektart
Büro/Praxen
Objekttyp
Praxisfläche
Nutzungsart
Gewerbe
Vermarktungsart
Miete

Geografische Angaben

Ort
Detmold
Etage
Erdgeschoss

Flächen

Bürofläche
ca. 387 m²
Anzahl Zimmer
22
Gesamtfläche
ca. 387 m²

Preise

Käuferprovision
2 Nettokaltmieten zzgl. 19% MwSt.

Ausstattung

Boden
PVC
Fahrstuhl
Personenaufzug

Beschreibung

Vielseitig nutzbare Räumlichkeiten in Detmold – Klinik, Praxis, Büro oder Lager

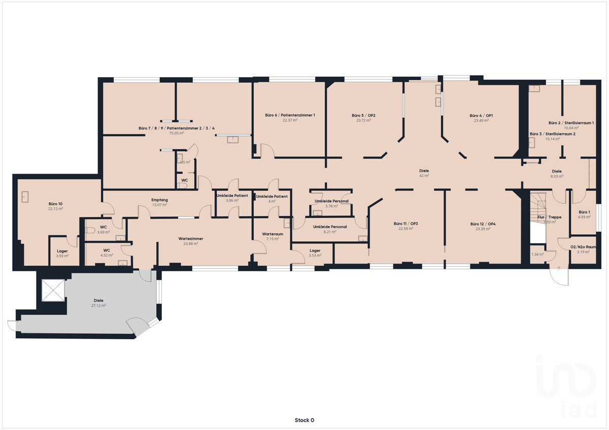
Diese großzügige Immobilie in Detmold bietet Ihnen eine außergewöhnliche Gelegenheit, 22 Räume in einer ehemaligen HNO-Klinik zu mieten. Die Räumlichkeiten sind ideal für eine Wiederbelebung als Klinik, aber auch für die Umnutzung als Büroflächen, eine große Arztpraxis oder als Lager geeignet. Die Nutzungsmöglichkeiten sind nahezu unbegrenzt, und Umbauarbeiten sind in Absprache mit dem Vermieter möglich.

Die gesamte Fläche ist ebenerdig, was eine barrierefreie Nutzung für viele verschiedene Zwecke ermöglicht. Es besteht auch die Möglichkeit, zusätzliche Flächen im gleichen Gebäude zu mieten: im 2. Obergeschoss eine Bürofläche von 279,79 m² oder im 3. Obergeschoss eine ehemalige Augenarztpraxis mit OP- und Laserraum auf 114,34 m². Vom 3. Obergeschoss aus haben Sie zudem einen herrlichen Blick auf das Hermannsdenkmal.

Virtueller 360-Grad-Rundgang:
Möchten Sie die Gewerbefläche in einem virtuellen Rundgang entdecken? Fordern Sie jetzt ganz einfach einen interaktiven 360-Grad-Rundgang an und erleben Sie die Immobilie aus jeder Perspektive – bequem von zu Hause aus. Kontaktieren Sie uns, um den Zugang zum Rundgang zu erhalten!

Ausstattung

22 Räume, geeignet für Klinikbetrieb, Büros, Arztpraxis oder Lager
Ebenerdige Nutzung – barrierefrei
Große Parkfläche für ausreichend Parkmöglichkeiten
Nutzung als Klinik, Büro oder Praxis möglich
Umbauarbeiten nach Absprache mit dem Vermieter
Zusätzliche Bürofläche im 2. OG mit 279,79 m²
Ehemalige Augenarzt Praxis im 3. OG mit 114,34 m² (inkl. OP- und Laserraum)
Schöner Ausblick auf das Hermannsdenkmal vom 3. OG

Lage

Die Immobilie liegt in Detmold, einer ausgezeichneten Lage mit guter Erreichbarkeit. Das Gebäude ist Teil eines medizinischen Zentrums, in dem bereits andere Ärzte und Praxen tätig sind. Der Standort bietet eine ruhige und dennoch zentrale Lage, ideal für medizinische oder gewerbliche Zwecke. Ein großer Parkplatz vor dem Gebäude sorgt für ausreichende Parkmöglichkeiten für Ihre Mitarbeiter und Patienten.

Durch die zentrale Lage in Detmold sind alle wichtigen Einrichtungen und Anbindungen an öffentliche Verkehrsmittel in der Nähe, was den Standort besonders attraktiv macht. Die Umgebung ist ruhig und dennoch gut mit dem Stadtzentrum und weiteren Infrastrukturpunkten verbunden.

Sonstige Angaben

An den Kunden durch uns weitergeleitete Angaben und Informationen zu Objekten liegen die uns erteilten Auskünfte des Veräußerers bzw. Vermieters zugrunde. Die ID Deutschland GmbH hat diese Angaben nicht geprüft. Vielmehr obliegt die Prüfung der Richtigkeit und/oder Vollständigkeit der Angaben allein dem Kunden. Unsere Angebote sind freibleibend.

Mit Ihrer Anfrage bei uns und der folgenden Inanspruchnahme unserer Dienstleistungen kommt ein Maklervertrag mit der ID Deutschland GmbH und Ihnen zustande. Sofern Sie aufgrund unserer Tätigkeit im Folgenden mit der Eigentümerseite einen Mietvertrag über das Objekt wirksam abschließen, haben Sie an die ID Deutschland GmbH die ortsübliche Maklercourtage zu zahlen in höhe von 2 Monatskaltnettomieten + 19% MwSt.

Informationen zur Besichtigung:
Die ID Deutschland GmbH wurde von dem Eigentümer durch einen schriftlichen Makleralleinauftrag mit der Vermittlung der Immobilie beauftragt. Bitte haben Sie deshalb Verständnis dafür, dass das Betreten des Grundstückes nur nach Absprache, bzw. unter Beisein eines unserer Mitarbeiter möglich ist. Gerne stehen wir Ihnen zur Vereinbarung eines individuellen und persönlichen Besichtigungstermins zur Verfügung.

Energieausweis

Energieausweis
ist beantragt

Ihre Anfrage zu der Immobilie „Vielseitig nutzbare Räumlichkeiten in Detmold – Klinik, Praxis, Büro oder Lager“ (iad-1939)

Ihre Kontaktdaten

* Pflichtfelder

Ihr Ansprechpartner

Herr Andreas Eick

Immobilienberater

Tel.:
+4915172388607
E-Mail:
andreas.eick@iaddeutschland.de

In freier Handelsvertretung für iad Deutschland GmbH.

Aufsichtsbehörde:Märkischer Kreis, Adresse der Aufsichtsbehörde:Heedfelder Straße 45, 58509 Lüdenscheid

Weitere Immobilien

Bürofläche im Ärztehaus Detmold – Großzügig, flexibel und mit tollem Ausblick

ImmoNr: iad-1940 Büro/Praxen Büroetage Miete 32756 Detmold Anzahl Zimmer: 16

Exklusive Bürofläche im 3. Obergeschoss eines Ärztehauses in Detmold

ImmoNr: iad-1941 Büro/Praxen Praxisetage Miete 32756 Detmold Anzahl Zimmer: 6