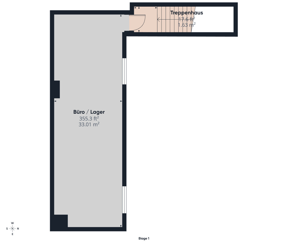
Zur Vermietung steht eine Büro- bzw. Lagerfläche im 1. Obergeschoss mit einer Größe von ca. 33 m².
Die Einheit verfügt über einen eigenen, separaten Eingang und eignet sich ideal als Büro, Archiv, Lager oder kombinierte Nutzung.
Die Fläche befindet sich in einem gewerblich genutzten Objekt und ist gut belichtet sowie funktional geschnitten. Durch den separaten Zugang ist eine unabhängige Nutzung problemlos möglich.
Zusätzlich besteht die Option, weitere Flächen im selben Gebäude mit anzumieten, was besonders für Unternehmen mit wachsendem Platzbedarf interessant ist.
Optionale Erweiterungsflächen im selben Objekt
Produktions-/Lager-/Großraumbürofläche im Erdgeschoss
ca. 118,51 m² (ehemalige Druckerei, inkl. Büro & WC)
Lagerfläche im Kellergeschoss
ca. 67,30 m²
Kombination mehrerer Flächen möglich
➡️ Ideal für Betriebe, die Büro, Lager und Produktion an einem Standort bündeln möchten.
Virtueller 360-Grad-Rundgang:
Möchten Sie die Gewerbefläche in einem virtuellen Rundgang entdecken? Fordern Sie jetzt ganz einfach einen interaktiven 360-Grad-Rundgang an. Kontaktieren Sie uns, um den Zugang zum Rundgang zu erhalten!
Kategorie
- Objektart
- Büro/Praxen
- Objekttyp
- Bürofläche
- Nutzungsart
- Gewerbe
- Vermarktungsart
- Miete
Geografische Angaben
- PLZ
- 45886
- Ort
- Gelsenkirchen / Ückendorf
Preise
- Käuferprovision
- 3 Nettokaltmieten zzgl. 19% MwSt.
Flächen
- Wohnfläche
- ca. 33 m²
- Gesamtfläche
- ca. 33 m²
Beschreibung
Ausstattung
Ca. 33 m² Büro-/Lagerfläche
Eigenständiger Eingang
Flexible Nutzungsmöglichkeiten
Ruhige Lage innerhalb des Objekts
Erweiterungsoptionen im gleichen Gebäude
Eigenständiger Eingang
Flexible Nutzungsmöglichkeiten
Ruhige Lage innerhalb des Objekts
Erweiterungsoptionen im gleichen Gebäude
Lage
Die Immobilie liegt in einem wohnlich geprägten Teil von Gelsenkirchen-Ückendorf. Durch die Lage im Hinterhof eines Wohnhauses eignet sich die Fläche besonders für ruhige Produktions-, Lager- oder Bürotätigkeiten. Die Anbindung an das Stadtgebiet sowie an überregionale Verkehrsachsen ist gut.
Sonstige Angaben
Sonstige Hinweise / Rechtliche Hinweise
Alle Angaben und Informationen zu diesem Objekt beruhen auf den uns vom Eigentümer bzw. Vermieter erteilten Auskünften. Eine Gewähr für die Richtigkeit, Vollständigkeit und Aktualität dieser Angaben wird von der IAD Deutschland GmbH nicht übernommen. Sämtliche Objektangaben sind vom Interessenten eigenständig zu prüfen. Irrtümer bleiben vorbehalten. Dieses Angebot ist freibleibend.
Mit der Anfrage bei der IAD Deutschland GmbH und der anschließenden Inanspruchnahme unserer Maklerdienstleistungen kommt ein Maklervertrag zwischen dem Interessenten und der IAD Deutschland GmbH zustande.
Sofern aufgrund unserer Tätigkeit ein wirksamer Mietvertrag über das angebotene Objekt mit der Eigentümerseite zustande kommt, verpflichtet sich der Mieter zur Zahlung einer Maklercourtage in Höhe von drei Monats-Kaltmieten zuzüglich der gesetzlichen Mehrwertsteuer (derzeit 19 %) an die IAD Deutschland GmbH. Die Provision ist mit Abschluss des Mietvertrages verdient und fällig.
Besichtigungshinweis
Die IAD Deutschland GmbH ist durch den Eigentümer mittels eines schriftlichen Makleralleinauftrages mit der Vermittlung der Immobilie beauftragt.
Ein Betreten des Grundstücks oder der Mieträume ist ausschließlich nach vorheriger Terminvereinbarung und in Begleitung eines Mitarbeiters der IAD Deutschland GmbH gestattet.
Gerne stehen wir Ihnen zur Vereinbarung eines individuellen Besichtigungstermins zur Verfügung.
Alle Angaben und Informationen zu diesem Objekt beruhen auf den uns vom Eigentümer bzw. Vermieter erteilten Auskünften. Eine Gewähr für die Richtigkeit, Vollständigkeit und Aktualität dieser Angaben wird von der IAD Deutschland GmbH nicht übernommen. Sämtliche Objektangaben sind vom Interessenten eigenständig zu prüfen. Irrtümer bleiben vorbehalten. Dieses Angebot ist freibleibend.
Mit der Anfrage bei der IAD Deutschland GmbH und der anschließenden Inanspruchnahme unserer Maklerdienstleistungen kommt ein Maklervertrag zwischen dem Interessenten und der IAD Deutschland GmbH zustande.
Sofern aufgrund unserer Tätigkeit ein wirksamer Mietvertrag über das angebotene Objekt mit der Eigentümerseite zustande kommt, verpflichtet sich der Mieter zur Zahlung einer Maklercourtage in Höhe von drei Monats-Kaltmieten zuzüglich der gesetzlichen Mehrwertsteuer (derzeit 19 %) an die IAD Deutschland GmbH. Die Provision ist mit Abschluss des Mietvertrages verdient und fällig.
Besichtigungshinweis
Die IAD Deutschland GmbH ist durch den Eigentümer mittels eines schriftlichen Makleralleinauftrages mit der Vermittlung der Immobilie beauftragt.
Ein Betreten des Grundstücks oder der Mieträume ist ausschließlich nach vorheriger Terminvereinbarung und in Begleitung eines Mitarbeiters der IAD Deutschland GmbH gestattet.
Gerne stehen wir Ihnen zur Vereinbarung eines individuellen Besichtigungstermins zur Verfügung.
Energieausweis
- Energieausweis
- ist beantragt
Ihr Ansprechpartner
Herr Andreas Eick
Immobilienberater
- Tel.:
- +4915172388607
- E-Mail:
- andreas.eick@iaddeutschland.de
In freier Handelsvertretung für iad Deutschland GmbH.
Aufsichtsbehörde:Märkischer Kreis, Adresse der Aufsichtsbehörde:Heedfelder Straße 45, 58509 Lüdenscheid