Büro- und Hallenfläche mit Krananlagen und eigener Trafostation in Mönchengladbach
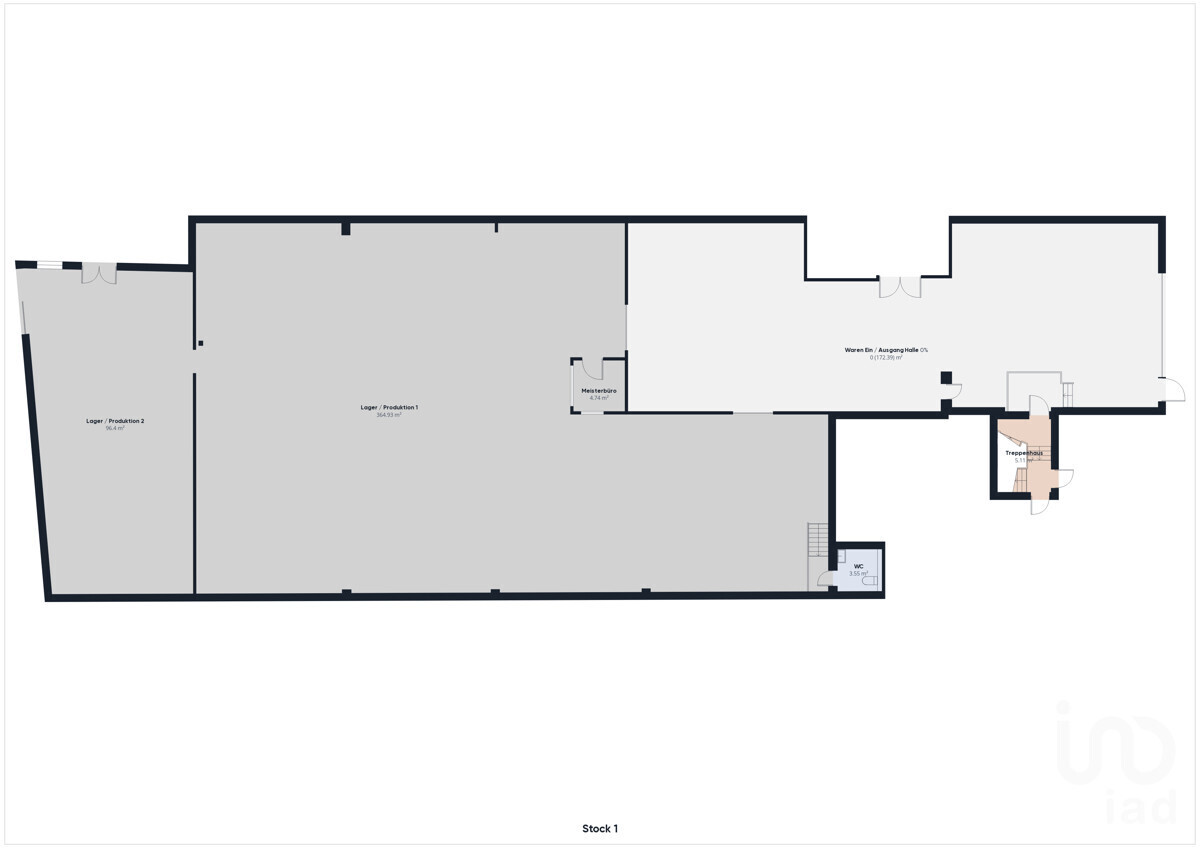
Zur Vermietung steht eine großzügige Gewerbehalle mit ca. 642 m² sowie eine angrenzende Bürofläche von ca. 65 m² in 41199 Mönchengladbach. Die Räumlichkeiten bieten hervorragende Voraussetzungen für Produktion, Lager oder andere gewerbliche Nutzungen.
Die Halle verfügt über verbaute Krananlagen sowie eine eigene Trafostation, wodurch eine stabile und leistungsfähige Stromversorgung gewährleistet ist. Sowohl die Halle als auch das Büro sind mit eigenen Sanitäranlagen ausgestattet, die frisch saniert bzw. renoviert wurden.
Das moderne, neu renovierte Büro umfasst drei separate Büroräume und einen komfortablen Teeküchenbereich. Der Hallenboden wurde erneuert und die Wände haben einen frischen Anstrich erhalten, sodass die gesamte Fläche sofort nutzbar ist.
Zusätzlich besteht die Möglichkeit, weitere Büroflächen im selben Gebäude anzumieten, wodurch eine flexible Erweiterung je nach Bedarf möglich ist. Jede Art von Gewerbe ist nach Rücksprache mit dem Vermieter grundsätzlich realisierbar.
Besichtigung und 360-Grad-Tour verfügbar
Nutzen Sie diese Gelegenheit, eine vielseitige Gewerbefläche in einer stark frequentierten Lage zu mieten. Für weitere Informationen oder eine Besichtigung stehen wir Ihnen gerne zur Verfügung.
Kategorie
- Objektart
- Hallen/Lager/Produktion
- Objekttyp
- Industriehalle
- Nutzungsart
- Gewerbe
- Vermarktungsart
- Miete
Geografische Angaben
- PLZ
- 41199
- Ort
- Mönchengladbach
Preise
- Käuferprovision
- 2 Nettokaltmieten zzgl. 19% MwSt.
Flächen
- Wohnfläche
- ca. 707 m²
- Gewerbefläche
- ca. 642 m²
- Gesamtfläche
- ca. 707 m²
Ausstattung
- Boden
- Laminat, Estrich, Fliesen, Beton, PVC
Beschreibung
Ausstattung
Halle: ca. 642 m²
Bürofläche: ca. 65 m², frisch renoviert
3 separate Büroräume und Teeküchenbereich
Eigene Trafostation im Gebäude
Verbaute Krananlagen in der Halle
Sanitäranlagen sowohl in Halle als auch im Büro (neu saniert)
Hallenboden erneuert, Wände frisch gestrichen
Erweiterungsmöglichkeit durch zusätzliche Büroflächen
Bürofläche: ca. 65 m², frisch renoviert
3 separate Büroräume und Teeküchenbereich
Eigene Trafostation im Gebäude
Verbaute Krananlagen in der Halle
Sanitäranlagen sowohl in Halle als auch im Büro (neu saniert)
Hallenboden erneuert, Wände frisch gestrichen
Erweiterungsmöglichkeit durch zusätzliche Büroflächen
Lage
Die Gewerbefläche befindet sich in 41199 Mönchengladbach, einer ausgezeichnet erreichbaren Lage mit guter Anbindung an das Verkehrsnetz. Die nähere Umgebung ist geprägt durch einen Mix aus Gewerbebetrieben und Wohngebieten, was eine attraktive Infrastruktur für Gewerbetreibende bietet.
Die Autobahnanbindung ist hervorragend, wodurch die Fläche schnell und bequem erreichbar ist. Vorhandene Parkplätze sorgen zudem für eine komfortable Erreichbarkeit für Kunden, Lieferanten und Mitarbeiter.
Die Autobahnanbindung ist hervorragend, wodurch die Fläche schnell und bequem erreichbar ist. Vorhandene Parkplätze sorgen zudem für eine komfortable Erreichbarkeit für Kunden, Lieferanten und Mitarbeiter.
Sonstige Angaben
An den Kunden durch uns weitergeleitete Angaben und Informationen zu Objekten liegen die uns erteilten Auskünfte des Veräußerers bzw. Vermieters zugrunde. Die ID Deutschland GmbH hat diese Angaben nicht geprüft. Vielmehr obliegt die Prüfung der Richtigkeit und/oder Vollständigkeit der Angaben allein dem Kunden. Unsere Angebote sind freibleibend.
Mit Ihrer Anfrage bei uns und der folgenden Inanspruchnahme unserer Dienstleistungen kommt ein Maklervertrag mit der ID Deutschland GmbH und Ihnen zustande. Sofern Sie aufgrund unserer Tätigkeit im Folgenden mit der Eigentümerseite einen Mietvertrag über das Objekt wirksam abschließen, haben Sie an die ID Deutschland GmbH die ortsübliche Maklercourtage zu zahlen in höhe von 2 Nettokaltmieten zzgl. 19% MwSt..
Informationen zur Besichtigung:
Die ID Deutschland GmbH wurde von dem Eigentümer durch einen schriftlichen Makleralleinauftrag mit der Vermittlung der Immobilie beauftragt. Bitte haben Sie deshalb Verständnis dafür, dass das Betreten des Grundstückes nur nach Absprache, bzw. unter Beisein eines unserer Mitarbeiter möglich ist. Gerne stehen wir Ihnen zur Vereinbarung eines individuellen und persönlichen Besichtigungstermins zur Verfügung.
Mit Ihrer Anfrage bei uns und der folgenden Inanspruchnahme unserer Dienstleistungen kommt ein Maklervertrag mit der ID Deutschland GmbH und Ihnen zustande. Sofern Sie aufgrund unserer Tätigkeit im Folgenden mit der Eigentümerseite einen Mietvertrag über das Objekt wirksam abschließen, haben Sie an die ID Deutschland GmbH die ortsübliche Maklercourtage zu zahlen in höhe von 2 Nettokaltmieten zzgl. 19% MwSt..
Informationen zur Besichtigung:
Die ID Deutschland GmbH wurde von dem Eigentümer durch einen schriftlichen Makleralleinauftrag mit der Vermittlung der Immobilie beauftragt. Bitte haben Sie deshalb Verständnis dafür, dass das Betreten des Grundstückes nur nach Absprache, bzw. unter Beisein eines unserer Mitarbeiter möglich ist. Gerne stehen wir Ihnen zur Vereinbarung eines individuellen und persönlichen Besichtigungstermins zur Verfügung.
Energieausweis
- Energieausweis
- ist beantragt
Ihr Ansprechpartner
Herr Andreas Eick
Immobilienberater
- Tel.:
- +4915172388607
- E-Mail:
- andreas.eick@iaddeutschland.de
In freier Handelsvertretung für iad Deutschland GmbH.
Aufsichtsbehörde:Märkischer Kreis, Adresse der Aufsichtsbehörde:Heedfelder Straße 45, 58509 Lüdenscheid