Diese entkernte Doppelhaushälfte in traditioneller Fachwerkbauweise bietet ideale Voraussetzungen für die Verwirklichung Ihres individuellen Wohnkonzepts, wie auf dem Bild dargestellt. Auf einem ca. 127 m² großen Grundstück stehen derzeit rund 87 m² Wohnfläche mit vier Zimmern zur Verfügung.
Ein Bauantrag für einen Anbau ist bereits eingereicht und ermöglicht eine Erweiterung auf ca. 120 m² Wohnfläche inklusive zusätzlichem Zimmer und Dachterrasse.
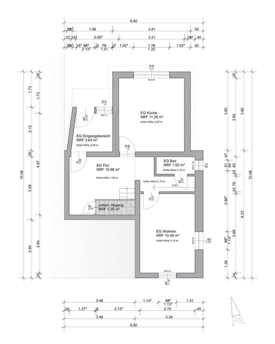
Ein Außenstellplatz kann in der Einfahrt realisiert werden. Alternativ besteht die Möglichkeit, eigene Planungen einzubringen.
Eine seltene Gelegenheit für alle, die den Charme eines Fachwerkhauses mit moderner Gestaltung verbinden möchten.
Category
- Type of property
- House
- Kind of property
- Semi-detached
- Type of use
- Residential
- Type of commercialization
- Purchase
Geographical data
- Postcode
- 40593
- City
- Düsseldorf / Urdenbach
Areas
- Number of rooms
- 4
- Living area
- approx. 87 sqm
- Usable area
- approx. 20 sqm
- Number of bedrooms
- 3
Prices
- Purchase price
- 199.000,00 €
- External commission
- 2,38% inkl. MwSt.
Description
Location
Düsseldorf-Urdenbach zählt zu den begehrtesten und exklusivsten Wohnlagen im Düsseldorfer Süden. Der Stadtteil besticht durch seine unmittelbare Nähe zum Rhein mit weitläufigen Auen, Deichen und Spazierwegen, die ein außergewöhnlich naturnahes Wohngefühl vermitteln. Die Rheinlage bietet hohe Lebensqualität, Ruhe und einen hohen Freizeitwert – ein seltenes Gut in einer Großstadt.
Gleichzeitig überzeugt Urdenbach durch seinen gewachsenen, dörflichen Charakter, eine anspruchsvolle Nachbarschaft sowie eine zurückhaltende Bebauung, die den exklusiven Charme des Viertels unterstreicht. Trotz der ruhigen Lage sind die Düsseldorfer Innenstadt sowie die umliegenden Stadtteile und Autobahnen schnell erreichbar.
Urdenbach vereint Natur, Rheinromantik und urbanen Komfort auf besonders elegante Weise – eine Wohnlage für Menschen, die Wert auf Privatsphäre, Qualität und Beständigkeit legen.
Gleichzeitig überzeugt Urdenbach durch seinen gewachsenen, dörflichen Charakter, eine anspruchsvolle Nachbarschaft sowie eine zurückhaltende Bebauung, die den exklusiven Charme des Viertels unterstreicht. Trotz der ruhigen Lage sind die Düsseldorfer Innenstadt sowie die umliegenden Stadtteile und Autobahnen schnell erreichbar.
Urdenbach vereint Natur, Rheinromantik und urbanen Komfort auf besonders elegante Weise – eine Wohnlage für Menschen, die Wert auf Privatsphäre, Qualität und Beständigkeit legen.
Other data
An den Kunden durch uns weitergeleitete Angaben und Informationen zu Objekten liegen die uns erteilten Auskünfte des Veräußerers bzw. Vermieters zugrunde. Die I@D Deutschland GmbH hat diese Angaben nicht geprüft. Vielmehr obliegt die Prüfung der Richtigkeit und/oder Vollständigkeit der Angaben allein dem Kunden.
Unsere Angebote sind freibleibend!
Mit Ihrer Anfrage bei uns und der folgenden Inanspruchnahme unserer Dienstleistungen kommt ein Maklervertrag mit der I@D Deutschland GmbH und Ihnen zustande. Sofern Sie aufgrund unserer Tätigkeit im Folgenden mit der Eigentümerseite einen Kaufvertrag über das Objekt wirksam abschließen, haben Sie an die I@D Deutschland GmbH die ortsübliche Maklercourtage zu zahlen. Im Falle des Abschlusses eines Mietvertrags haben Sie gem. § 2 Abs. 1a WoVermG keine Provision an die I@D Deutschland GmbH zu zahlen.
Unsere Angebote sind freibleibend!
Mit Ihrer Anfrage bei uns und der folgenden Inanspruchnahme unserer Dienstleistungen kommt ein Maklervertrag mit der I@D Deutschland GmbH und Ihnen zustande. Sofern Sie aufgrund unserer Tätigkeit im Folgenden mit der Eigentümerseite einen Kaufvertrag über das Objekt wirksam abschließen, haben Sie an die I@D Deutschland GmbH die ortsübliche Maklercourtage zu zahlen. Im Falle des Abschlusses eines Mietvertrags haben Sie gem. § 2 Abs. 1a WoVermG keine Provision an die I@D Deutschland GmbH zu zahlen.
Energy certificate
- Year of construction according to energy certificate
- 1928
- Energy certificate valid until
- 14.08.1934
- Energy efficiency class
- H
- Main energy source
- Electric
Your contact person
Mr. Burkhard Platte
Immobilienberater
- Tel:
- 01732747422
In freier Handelsvertretung für iad Deutschland GmbH.
Aufsichtsbehörde: Rhein-Erft-Kreis Adresse der Aufsichtsbehörde: Willy-Brandt-Platz 1, 50126 Bergheim