Switch to content
e957f2f0-0c5b-4486-bc4f-45cb965204a2

Attraktive Gewerberäume in Reinickendorf – zentral & bestens angebunden

Category

Type of property
Offices/Medical facilities
Kind of property
Office area
Type of use
Commercial
Type of commercialization
Rent

Geographical data

Postcode
13409
City
Berlin
Floor
1

Areas

Office area
approx. 57 sqm
Number of rooms
2
Total area
approx. 57 sqm

Prices

External commission
Provisionsfrei

Equipment/Features

Floor
Laminate flooring
Elevator
Lift

Description

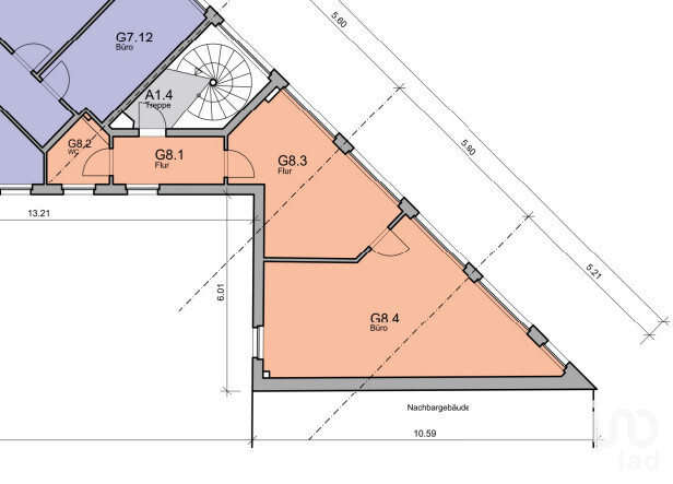
Diese kompakte Bürofläche von ca. 57 m² im 1. Obergeschoss eines markanten Bürogebäudes in Berlin-Reinickendorf eignet sich ideal als Büro für kleinere Unternehmen oder Dienstleister. Die Fläche besteht aus zwei gut geschnittenen Büroräumen und einem WC. Große Fensterflächen sorgen für viel natürliches Licht und schaffen eine helle, angenehme Arbeitsatmosphäre.

Die Büroeinheit ist über eine Treppe erreichbar und bietet eine flexible Nutzungsmöglichkeit für verschiedene Geschäftszwecke.

Location

Die Immobilie befindet sich in einer gut erschlossenen Lage von Berlin-Reinickendorf, mit hervorragender Anbindung an den öffentlichen Nahverkehr. In unmittelbarer Nähe befinden sich zahlreiche Einkaufsmöglichkeiten, Restaurants und weitere Dienstleister.

ÖPNV-Anbindung:

S-Bahn: S25 (Bahnhof Schönholz) in ca. 10 Gehminuten erreichbar

U-Bahn: U8 (U-Bahn-Station Franz-Neumann-Str,) ca. 15 Minuten zu Fuß oder U9 (U-Bahn-Station Osloer Str.) ca. 7 Minuten zu Fuß.

Buslinien: Mehrere Busverbindungen in direkter Umgebung (z. B. Linie 327, 125, M21)

Autobahnanschluss: Schnelle Anbindung an die A111, ideal für Pendler oder Kundenverkehr.

Other data

An den Kunden durch uns weitergeleitete Angaben und Informationen zu Objekten liegen die uns erteilten Auskünfte des Veräußerers bzw. Vermieters zugrunde. Die I@D Deutschland GmbH hat diese Angaben nicht geprüft. Vielmehr obliegt die Prüfung der Richtigkeit und/oder Vollständigkeit der Angaben allein dem Kunden. Unsere Angebote sind freibleibend. Mit Ihrer Anfrage bei uns und der folgenden Inanspruchnahme unserer Dienstleistungen kommt ein Maklervertrag mit der I@D Deutschland GmbH und Ihnen zustande. Sofern Sie aufgrund unserer Tätigkeit im Folgenden mit der Eigentümerseite einen Kaufvertrag über das Objekt wirksam abschließen, haben Sie an die I@D Deutschland GmbH die ortsübliche Maklercourtage zu zahlen. Im Falle des Abschlusses eines Mietvertrags haben Sie gem. § 2 Abs. 1a WoVermG keine Provision an die I@D Deutschland GmbH zu zahlen.

Energy certificate

Year of construction according to energy certificate
1994
Energy consumption
187,6 kWh/(m²a)
Final energy consumption (electricity)
21 kWh/(m²a)
Final consumption of energy (thermal)
187,6 kWh/(m²a)
Energy certificate
Energy consumption data
Energy certificate valid until
04.05.2035
Main energy source
Oil

Your Inquiry about Real Estate “Attraktive Gewerberäume in Reinickendorf – zentral & bestens angebunden” (iad-2890)

Your contact details

* Mandatory fields

Your contact person

Victoria LYSKOVA

Ms. Victoria LYSKOVA

Immobilienberaterin

Tel:
015751377927
Email
victoria.lyskova@iaddeutschland.de

In freier Handelsvertretung für iad Deutschland GmbH.

Aufsichtsbehörde:Bezirksamt Mitte Ordnungsamt Mitte – Arbeitsgruppe Gewerbe Karl-Marx-Allee 31, 10178 Berlin

More properties

Moderne Gewerblehalle mit vielseitigen Nutzungsmöglichkeiten
PropNo: iad-2209 Offices/Medical facilities Business center Rent Number of rooms: 10 13509 Berlin
Moderne Gewerberäume nahe U Osloer Str.
PropNo: iad-3293 Offices/Medical facilities Office area Rent Number of rooms: 4 13409 Berlin
Modern und kernsaniert! Gewerbehalle mit vielseitigen Nutzungsmöglichkeiten
PropNo: iad-4000 Offices/Medical facilities Business center Rent Number of rooms: 9 13509 Berlin
Gepflegte Gewerberaum mit sehr guter ÖV-Anbindung nahe U Osloer Str. – Top-Lage in Reinickendorf
PropNo: iad-4107 Offices/Medical facilities Office area Rent Number of rooms: 2 13409 Berlin
Flexible Büroflächen mit historischem Industrie-Flair in Reinickendorf
PropNo: iad-4154 Offices/Medical facilities Office area Rent Number of rooms: 10 13509 Berlin