Es handelt sich rechtlich um eine Wohn- und Geschäftseinheit im Sondereigentum innerhalb einer Wohnungseigentümergemeinschaft.
Zwischen Atelier und Wohnzimmer steht ein Walnussbaum, der dir beim Frühstück zusieht! Er vermittelt den Spirit von Ruhe und Lebensfreude, die man durch das ganze Haus fühlt.
Denn in diesem Hinterhof von Mariendorf befindet sich ein Zuhause, das anders ist als alles, was du kennst – es ist voller Seele und Möglichkeiten. Eine verwunschene Villa öffnet ihre Türen auf über 300 Quadratmetern. Sie ist zur Zeit aufgeteilt in einen separaten Gewerbeteil von ca. 110 m² und ein Wohnhaus mit fast 200 m² auf zwei Etagen.
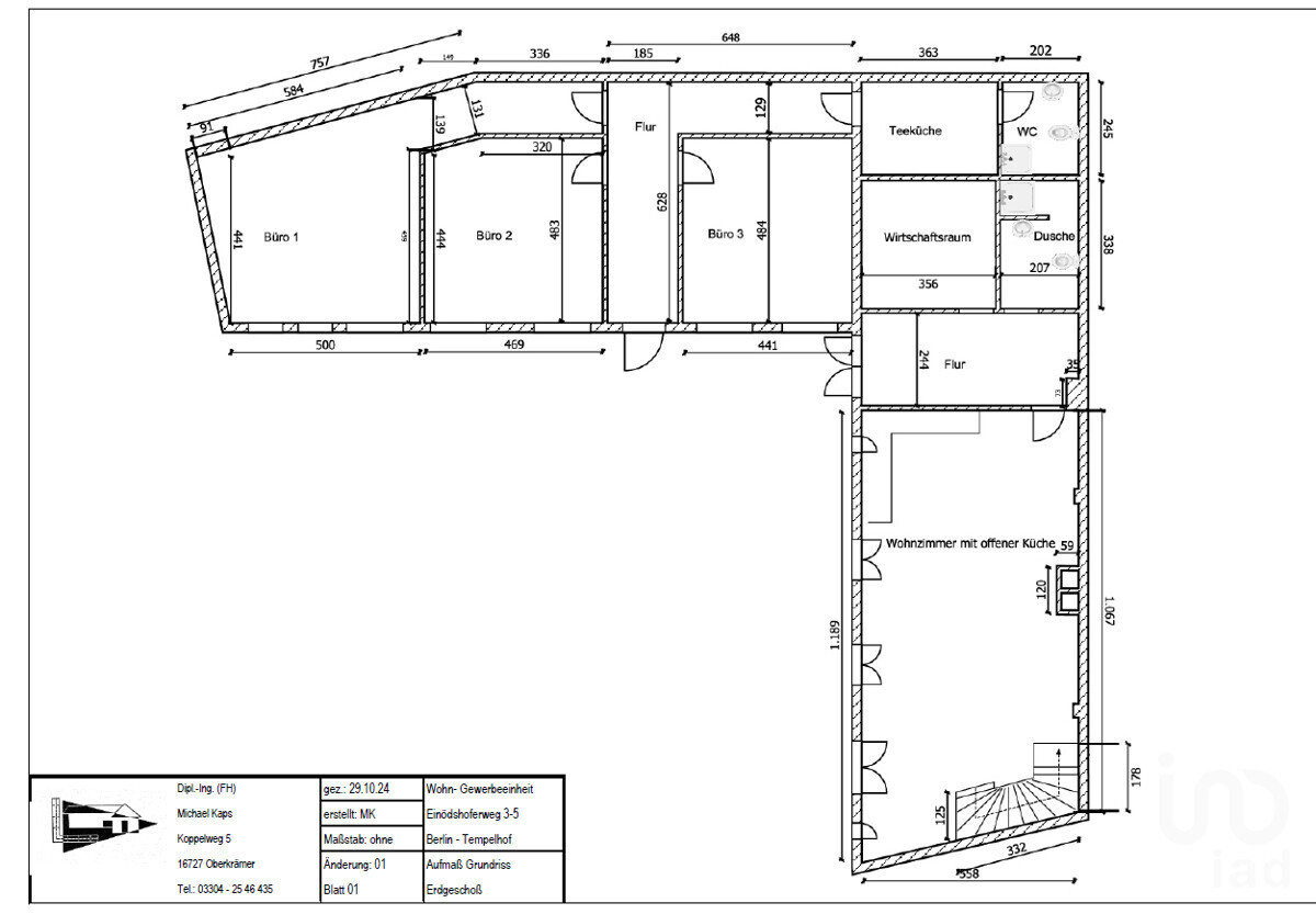
Der Gewerbeteil besteht aus drei hellen warmen Räumen mit Echtholzparkett, Teeküche und Duschbad. Er kann vermietet oder als Atelier genutzt werden. Antrag auf Wohnnutzung ist gestellt.
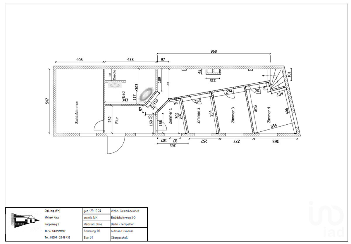
Wenn du das Wohnhaus direkt daneben betrittst, stehst du in einem riesigen Wohnzimmer (60qm) mit offener Küche. Oben im ersten Stock befinden sich fünf sehr helle Zimmer und ein großzügiges Badezimmer mit freistehender Badewanne. Fast alle Wände des Hauses sind Leichtbauwände und lassen sich beliebig verändern. Das bietet viele individuelle Möglichkeiten. Vom oberen Stock gelangt man direkt auf das Flachdach.
Die Terrasse (ca 17,5qm) ist noch nicht in der Wohnflächenberechnung erfasst, kann aber nachträglich eingetragen werden. Sie erhöht die Gesamtquadratmeterzahl der Immobilie!
2013 nachhaltig und liebevoll kernsaniert:
Die Sanierung wurde nur mit ökologischen Materialien durchgeführt. Durch die energetische Optimierung wurde ein gesundes Raumklima geschaffen – u.a. mit Wandheizungen, durchdachten Lüftungsanlagen, dreifach verglasten Holzfenstern und moderner Gasbrennwerttechnik.
Kurz: Dies ist ein Ort für kreative Freigeister, Mehrgenerations-Familien, WG`s, ein Yogastudio, Gäste. Auch für soziale Träger/Stiftungen sehr spannend weil so viele Zimmer!
WICHTIGE INFOS UNTER SONSTIGES
Video: https://momenzo.app.link/e/V1JyH4SPqXb
Kategorie
- Objektart
- Haus
- Objekttyp
- Wohn- und Geschäftshaus
- Nutzungsart
- Wohnen
- Vermarktungsart
- Kauf
Geografische Angaben
- PLZ
- 12109
- Ort
- Berlin
- Etage
- EG und 1.OG
Flächen
- Anzahl Zimmer
- 9
- Wohnfläche
- ca. 306 m²
- Anzahl Badezimmer
- 3
- Anzahl Terrassen
- 1
Preise
- Kaufpreis
- 1.200.000,00 €
- Käuferprovision
- 2,9% inkl MwSt
Ausstattung
Terrasse
- Befeuerung
- Gas
- Etagenzahl
- 2
- Stellplätze
- 1 Freiplatz
Beschreibung
Ausstattung
- 306m² Wohn-/Nutzfläche: Zwei einzelne Gebäudeteile
- flexible Raumaufteilung durch Leichtbauwände – sehr
leicht veränderbar
- Eichendielen
- Holzprofiltüren
- Schiefer- und Steinzeugfliesen
- Wandheizungen
- moderne Gasbrennwerttechnik, komplett neu aus 2026
- moderne Lüftungsanlagen
- dreifach verglaste Holzfenster
- freistehende Badewanne
- mehrere Badezimmer
- Gäste WC
- Hauswirtschaftraum
- Wäscherutsche vom OG ins EG
- eigener Garten, mit Möglichkeit zur Größenerweitung
durch bestehenden Pachtvertrag (15 Euro/Monat), dadurch
dann insgesamt ca. 80qm
- Terrasse: 3,5m x 5m
- Keller, komplett neu saniert in 2026
- Auto Stellplatz auf gepflastertertem Hof
- flexible Raumaufteilung durch Leichtbauwände – sehr
leicht veränderbar
- Eichendielen
- Holzprofiltüren
- Schiefer- und Steinzeugfliesen
- Wandheizungen
- moderne Gasbrennwerttechnik, komplett neu aus 2026
- moderne Lüftungsanlagen
- dreifach verglaste Holzfenster
- freistehende Badewanne
- mehrere Badezimmer
- Gäste WC
- Hauswirtschaftraum
- Wäscherutsche vom OG ins EG
- eigener Garten, mit Möglichkeit zur Größenerweitung
durch bestehenden Pachtvertrag (15 Euro/Monat), dadurch
dann insgesamt ca. 80qm
- Terrasse: 3,5m x 5m
- Keller, komplett neu saniert in 2026
- Auto Stellplatz auf gepflastertertem Hof
Lage
Die Lage in Berlin-Mariendorf ist eine super Kombination aus ruhigem Wohnen und guter Anbindung an öffentliche Verkehrsmittel. Die U-Bahn-Station Westphalweg ist nur 350m entfernt, hier sind ebenfalls mehreren Buslinien, die auch zum Flughafen BER und dem Hauptbahnhof fahren. Du erreichst zentrale Punkte Berlins, wie Kreuzberg und Mitte sehr einfach und schnell. Eine Vielzahl von Freizeitmöglichkeiten, Parks, Einkaufsmöglichkeiten sowie eine hervorragende medizinische Versorgung (Ärzte und Apotheken) sind fußläufig erreichbar. Schulen, Kitas und selbst ein Schwimmbad sind auch ganz in der Nähe!
- Schaetzelberg Grundschule (ca. 1 km entfernt)
- Das beliebte riesengroße Tempelhofer Feld ist nur 3,5 km
entfernt (ca 12 Fahrradminuten)
- Volkspark, Stadion und Sommerfreibad: Mariendorfer
Damm 200 (15 Minuten zu Fuß)
- Tempelhofer Hafen: Shopping Center: Tempelhofer
Damm (ca 20 Minuten zu Fuß)
U6 Westphalweg (nur 350m entfernt): Bis zur Innenstadt ca. 25-30 Minuten
S2 Atilastraße (1,5 km entfernt): Bis zur Innenstadt ca. 25-30 Minuten
BER Flughafen mit Bus X71: In ca. 40-45 Minuten erreichbar
- Schaetzelberg Grundschule (ca. 1 km entfernt)
- Das beliebte riesengroße Tempelhofer Feld ist nur 3,5 km
entfernt (ca 12 Fahrradminuten)
- Volkspark, Stadion und Sommerfreibad: Mariendorfer
Damm 200 (15 Minuten zu Fuß)
- Tempelhofer Hafen: Shopping Center: Tempelhofer
Damm (ca 20 Minuten zu Fuß)
U6 Westphalweg (nur 350m entfernt): Bis zur Innenstadt ca. 25-30 Minuten
S2 Atilastraße (1,5 km entfernt): Bis zur Innenstadt ca. 25-30 Minuten
BER Flughafen mit Bus X71: In ca. 40-45 Minuten erreichbar
Sonstige Angaben
deutsch, englisch, francais possible 🙂
WICHTIGE HINWEISE:
1. Eintrag im Teileigentumsgrundbuch
2. Die Immobilie ist grundbuchrechtlich als Wohnung im Sondereigentum gemäß Wohnungseigentumsgesetz (WEG) eingetragen. Das Haus bildet mit der Hausgemeinschaft eine Wohnungseigentümergemeinschaft. Der Käufer erwirbt einen Miteigentumsanteil von 1360/10.000 am Grundstück.
3. Ein Umnutzungs Bauantrag von Gewerbe- zu Wohnnutzung für den Gerwebeteil ist gestellt. Nach Antrags-Bewilligung KANN umgewandelt werden.
4. Änderung der Nutzung wird nicht in Teilungserklärung geändert, aber es liegt ein juristisches und auch von der Hausverwaltung akzeptiertes Unbedenklichkeits-Schreiben vor. WEG Beschluss dazu erfolgt voraussichtlich im April/Mai 2026
5. Der Grundriß der beiden Einheiten darf gemäß Erhaltunsverordnung nicht zusammengelegt werden. Man hat zu beiden Einheiten seperaten Zutritt.
Besichtigung jederzeit gerne nach Vereinbarung möglich.
Das Objekt ist sofort verfügbar und bezugsfrei.
Wohngeld: 299,- für Gewerbe und Wohneinheit.
Keine monatliche Zahlung für Instandhaltungsrücklage.
Die Einheit ist autark von der WEG getrennt und hat somit auch keine Instandhaltungsrücklage.
Gewerbefläche: ca. 110,69 m²
Wohnfläche, EG: ca. 90,47 m²
Wohnfläche OG: ca. 104,86 m²
An den Kunden durch uns weitergeleitete Angaben und Informationen zu Objekten liegen die uns erteilten Aus-
künfte des Veräußerers bzw. Vermieters zugrunde. Die I@D Deutschland GmbH hat diese Angaben nicht geprüft.
Vielmehr obliegt die Prüfung der Richtigkeit und/oder Vollständigkeit der Angaben allein dem Kunden. Unsere Angebote sind freibleibend. Mit Ihrer Anfrage bei uns und der folgenden Inanspruchnahme unserer Dienstleistungen kommt ein Maklervertrag mit der I@D Deutschland GmbH und Ihnen zustande.Sofern Sie aufgrund unserer Tätigkeit im Folgenden mit der Eigentümerseite einen Kaufvertrag über das Objekt wirksam abschließen, haben Sie an die I@D Deutschland GmbH die ortsübliche Maklercourtage zu zahlen
WICHTIGE HINWEISE:
1. Eintrag im Teileigentumsgrundbuch
2. Die Immobilie ist grundbuchrechtlich als Wohnung im Sondereigentum gemäß Wohnungseigentumsgesetz (WEG) eingetragen. Das Haus bildet mit der Hausgemeinschaft eine Wohnungseigentümergemeinschaft. Der Käufer erwirbt einen Miteigentumsanteil von 1360/10.000 am Grundstück.
3. Ein Umnutzungs Bauantrag von Gewerbe- zu Wohnnutzung für den Gerwebeteil ist gestellt. Nach Antrags-Bewilligung KANN umgewandelt werden.
4. Änderung der Nutzung wird nicht in Teilungserklärung geändert, aber es liegt ein juristisches und auch von der Hausverwaltung akzeptiertes Unbedenklichkeits-Schreiben vor. WEG Beschluss dazu erfolgt voraussichtlich im April/Mai 2026
5. Der Grundriß der beiden Einheiten darf gemäß Erhaltunsverordnung nicht zusammengelegt werden. Man hat zu beiden Einheiten seperaten Zutritt.
Besichtigung jederzeit gerne nach Vereinbarung möglich.
Das Objekt ist sofort verfügbar und bezugsfrei.
Wohngeld: 299,- für Gewerbe und Wohneinheit.
Keine monatliche Zahlung für Instandhaltungsrücklage.
Die Einheit ist autark von der WEG getrennt und hat somit auch keine Instandhaltungsrücklage.
Gewerbefläche: ca. 110,69 m²
Wohnfläche, EG: ca. 90,47 m²
Wohnfläche OG: ca. 104,86 m²
An den Kunden durch uns weitergeleitete Angaben und Informationen zu Objekten liegen die uns erteilten Aus-
künfte des Veräußerers bzw. Vermieters zugrunde. Die I@D Deutschland GmbH hat diese Angaben nicht geprüft.
Vielmehr obliegt die Prüfung der Richtigkeit und/oder Vollständigkeit der Angaben allein dem Kunden. Unsere Angebote sind freibleibend. Mit Ihrer Anfrage bei uns und der folgenden Inanspruchnahme unserer Dienstleistungen kommt ein Maklervertrag mit der I@D Deutschland GmbH und Ihnen zustande.Sofern Sie aufgrund unserer Tätigkeit im Folgenden mit der Eigentümerseite einen Kaufvertrag über das Objekt wirksam abschließen, haben Sie an die I@D Deutschland GmbH die ortsübliche Maklercourtage zu zahlen
Energieausweis
- Baujahr lt. Energieausweis
- 1926
- Endenergieverbrauch
- 83,58 kWh/(m²a)
- Energieausweis
- Verbrauchsausweis
- Energieausweis gültig bis
- 23.03.2035
- Energieeffizienzklasse
- C
- wesentlicher Energieträger
- Gas
Ihre Ansprechpartnerin
Frau Julia Franz
- Tel.:
- +49 177 3270614
- E-Mail:
- julia.franz@iaddeutschland.de
In freier Handelsvertretung für iad Deutschland GmbH.
Aufsichtsbehörde:Bezirksamt Pankow von Berlin, Postfach 730113, 13062 Berlin