Das 1965 erbaute Haus auf einem 422 m² großen Grundstück mit Garage und Stellplatz verfügt über eine Gesamtwohnfläche von ca. 123 m². Es besteht aus zwei Wohneinheiten und eine Einliegerwohnung und beeindruckt durch zeitgemäße Ausstattung, vollständige Modernisierung sowie die ideale Symbiose aus Wohnkomfort und nachhaltiger Wertsteigerung durch den genehmigten Maisonette-Ausbau.
Das Haus wurde zwischen 2023 und 2025 vollständig saniert und besticht durch hochwertige Materialien, neue Zimmertüren und moderne Bäder und ca. um die 350 m² großen Garten.
Die Kombination aus vollsanierter Substanz, Maisonette-Ausbaupotenzial und sofort nutzbarer Einliegerwohnung macht das Objekt gleichermaßen attraktiv für Familien, die modernes Wohnen mit großzügigem Raumangebot suchen, wie für Investoren, die ein Objekt mit Renditepotenzial und Wertsteigerungsmöglichkeiten erwerben möchten.
Hinweis:
In einigen aktuell leeren Räumen sowie vereinzelt in anderen Bereichen des Hauses wurde virtuelles Home-Staging durchgeführt (EG: Bürozimmer, Wintergarten, Garten; OG: Wohnzimmer, Flur; UG: Wohnzimmer).
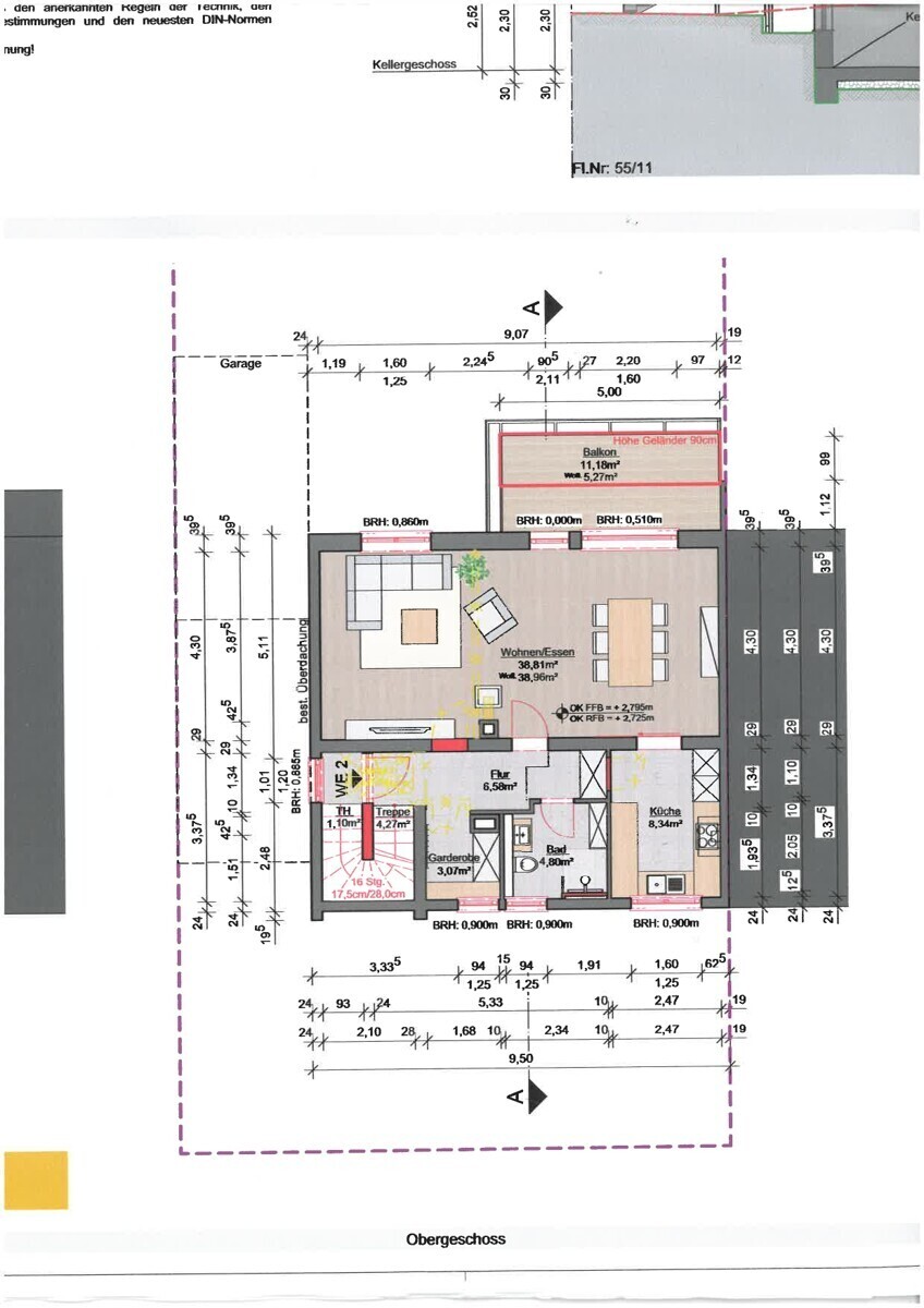
Aufteilung
Erdgeschoss (ca. 70 m²): 3 Zimmer
- Flur
- Großzügiges Wohnzimmer
- Schlafzimmer
- Bürozimmer
- Küche
- Tageslichtbad mit Dusche
- Wintergarten (eingebaut Ende 1980)
- Ca. 350 m² großer Garten
Obergeschoss (ca. 70 m²): 1 Zimmer-Wohnung
- Flur
- Tageslichtbad
- Großes Wohnzimmer
- Balkon
Maisonette-Ausbaupotenzial (Baugenehmigung 2024)
Untergeschoss
- Eine vollmöblierte 1‑Zimmer-Wohnung mit 35 m²
- Großer Wohnbereich, der sich bei Bedarf problemlos wieder in zwei separate Räume aufteilen lässt und so flexible Nutzungsmöglichkeiten bietet.
- Tageslichtbad mit Dusche
- Waschküche, Keller und Heizungsraum
Kategorie
- Objektart
- Haus
- Objekttyp
- Zweifamilienhaus
- Nutzungsart
- Wohnen
- Vermarktungsart
- Kauf
Geografische Angaben
- PLZ
- 63477
- Ort
- Maintal / Dörnigheim
Flächen
- Anzahl Zimmer
- 5
- Wohnfläche
- ca. 123 m²
- Nutzfläche
- ca. 60 m²
- Anzahl Schlafzimmer
- 3
- Anzahl Badezimmer
- 3
- Anzahl sep. WC
- 3
- Anzahl Balkone
- 1
- Anzahl Terrassen
- 1
Preise
- Kaufpreis
- 659.000,00 €
- Käuferprovision
- 39210,5 inkl. MWST
Ausstattung
Balkon
Terrasse
- Stellplätze
- 1 Freiplatz, 1 Garage
Beschreibung
Ausstattung
• Neue Fenster (außer Wintergarten)
• Elektrische, steuerbare Rollläden
• Komplette Erneuerung der Elektrik (Leitungen bis Spitzboden vorbereitet)
• Neue Wasser-, Heizungs- und Abwasserleitungen
• Neue Bodenbeläge (Vinyl & Fliesen)
• 3 komplett sanierte Badezimmer
• Großteils erneuerte Innentüren
• Elektronisches Türöffnungssystem mit Videoeinheiten auf jeder Etage
• Zwei Außenkameras
• Neue Heizkörper
• App-gesteuerte Thermostate
• Zwei neue Einbauküchen
• Alle Zimmertüre neue
• Neuwertige Einbauküche in der Einliegerwohnung
• Laminat und Fliesen
• Glasfaseranschluss auf jeder Etage (bis 1.000 MBit/s)
• Gasheizung Baujahr 2012 – bewährt und effizient.
• Elektrische, steuerbare Rollläden
• Komplette Erneuerung der Elektrik (Leitungen bis Spitzboden vorbereitet)
• Neue Wasser-, Heizungs- und Abwasserleitungen
• Neue Bodenbeläge (Vinyl & Fliesen)
• 3 komplett sanierte Badezimmer
• Großteils erneuerte Innentüren
• Elektronisches Türöffnungssystem mit Videoeinheiten auf jeder Etage
• Zwei Außenkameras
• Neue Heizkörper
• App-gesteuerte Thermostate
• Zwei neue Einbauküchen
• Alle Zimmertüre neue
• Neuwertige Einbauküche in der Einliegerwohnung
• Laminat und Fliesen
• Glasfaseranschluss auf jeder Etage (bis 1.000 MBit/s)
• Gasheizung Baujahr 2012 – bewährt und effizient.
Lage
Maintal überzeugt durch eine familienfreundliche Infrastruktur und kurze Wege:
• Einkaufsmöglichkeiten fußläufig in ca. 5 Minuten (Tegut, Müller, Penny, Lidl, AWG)
• Das nächste größere Einkaufszentrum (Hessen Center) mit rd. 38.000 m² Verkaufsfläche befindet sich in ca. 7 km Entfernung
• Regionalbahn & Bus ebenfalls in ca. 5 Minuten erreichbar
• Ärzte, Schulen & Kindergärten in direkter Umgebung
• Kindergarten und Grundschule innerhalb von ca. 500 m² Meter entfernt
• Natur, Seen, Rad- und Spazierwege direkt vor der Haustür
Eine Lage, die sowohl Alltagstauglichkeit als auch Lebensqualität bietet. Maintal liegt zwischen Frankfurt am Main und Hanau. Maintal ist nach Hanau die zweitgrößte Stadt in Main-Kinzig-Kreis. Maintal grenzt an den Gemeinden Niederdorfelden und Schöneck, an Hanau, Mühlheim am Main und die Stadt Offenbach sowie im Westen an die Stadteile Fechenheim und Bergen-Enkheim. Maintal gliedert sich an die Stadtteile Bischofsheim, Dörnigheim, Hochstadt und Wachenbuchen.
• Einkaufsmöglichkeiten fußläufig in ca. 5 Minuten (Tegut, Müller, Penny, Lidl, AWG)
• Das nächste größere Einkaufszentrum (Hessen Center) mit rd. 38.000 m² Verkaufsfläche befindet sich in ca. 7 km Entfernung
• Regionalbahn & Bus ebenfalls in ca. 5 Minuten erreichbar
• Ärzte, Schulen & Kindergärten in direkter Umgebung
• Kindergarten und Grundschule innerhalb von ca. 500 m² Meter entfernt
• Natur, Seen, Rad- und Spazierwege direkt vor der Haustür
Eine Lage, die sowohl Alltagstauglichkeit als auch Lebensqualität bietet. Maintal liegt zwischen Frankfurt am Main und Hanau. Maintal ist nach Hanau die zweitgrößte Stadt in Main-Kinzig-Kreis. Maintal grenzt an den Gemeinden Niederdorfelden und Schöneck, an Hanau, Mühlheim am Main und die Stadt Offenbach sowie im Westen an die Stadteile Fechenheim und Bergen-Enkheim. Maintal gliedert sich an die Stadtteile Bischofsheim, Dörnigheim, Hochstadt und Wachenbuchen.
Sonstige Angaben
Bitte fragen Sie ausschließlich schriftlich an, da wir die gesetzlichen Vorgaben einhalten müssen. Im Anschluss an Ihre Anfrage erhalten Sie eine Email mit bitte zur Bestätigung zwecks Datenverarbeitung, Maklervertrag und Widerrufsrecht.
Die Vermittlung ist provisionspflichtig und beträgt 5,95% inkl. 19% Mwst. vom beurkundeten Verkaufspreis..
Rechtliche Hinweise: An den Kunden durch uns weitergeleitete Angaben und Informationen zu Objekt enliegen die uns erteilten Auskünfte des Veräußerers bzw. Vermieters zugrunde.
Die I@D Deutschland GmbH hat diese Angaben nicht geprüft. Vielmehr obliegt die Prüfung der Richtigkeit und / oder Vollständigkeit der Angaben allein dem Kunden. Unsere Angebote sind freibleibend. Mit Ihrer Anfrage bei uns und der folgenden Inanspruchnahme unserer Dienstleistungen kommt ein Maklervertrag mit der I@D Deutschland GmbH und Ihnen zustande. Sofern Sie aufgrund unserer Tätigkeit im Folgenden mit der Eigentümerseite einen Kaufvertrag über das Objekt wirksam abschließen, haben Sie an die I@D Deutschland GmbH die ortsübliche Maklercourtage zu zahlen. Im Falle des Abschlusses eines Mietvertrags haben Sie gem. § 2 Abs. 1a WoVermG keine Provision an die I@D Deutschland GmbH zu.
Die Vermittlung ist provisionspflichtig und beträgt 5,95% inkl. 19% Mwst. vom beurkundeten Verkaufspreis..
Rechtliche Hinweise: An den Kunden durch uns weitergeleitete Angaben und Informationen zu Objekt enliegen die uns erteilten Auskünfte des Veräußerers bzw. Vermieters zugrunde.
Die I@D Deutschland GmbH hat diese Angaben nicht geprüft. Vielmehr obliegt die Prüfung der Richtigkeit und / oder Vollständigkeit der Angaben allein dem Kunden. Unsere Angebote sind freibleibend. Mit Ihrer Anfrage bei uns und der folgenden Inanspruchnahme unserer Dienstleistungen kommt ein Maklervertrag mit der I@D Deutschland GmbH und Ihnen zustande. Sofern Sie aufgrund unserer Tätigkeit im Folgenden mit der Eigentümerseite einen Kaufvertrag über das Objekt wirksam abschließen, haben Sie an die I@D Deutschland GmbH die ortsübliche Maklercourtage zu zahlen. Im Falle des Abschlusses eines Mietvertrags haben Sie gem. § 2 Abs. 1a WoVermG keine Provision an die I@D Deutschland GmbH zu.
Energieausweis
- Baujahr lt. Energieausweis
- 1965
- Endenergieverbrauch
- 204,2 kWh/(m²a)
- Energieausweis
- Verbrauchsausweis
- Energieausweis gültig bis
- 17.12.2035
- Energieeffizienzklasse
- G
- wesentlicher Energieträger
- Erdgas schwer
Ihre Ansprechpartnerin
Frau Geneviève PRAT
Immobilienberaterin
- Tel.:
- 00491791248247
- E-Mail:
- genevieve.prat@iaddeutschland.de
In freier Handelsvertretung für iad Deutschland GmbH.
Aufsichtsbehörde: Der Landrat des Hochtaunuskreises, Adresse der Aufsichtsbehörde: Ludwig-Erhard-Anlage 1-5, 61352 Bad Homburg v.d.Höhe