Zur Navigation wechseln Zum Inhalt wechseln Zum Footer wechseln
Gebäudeansicht1

Flexible Büroflächen mit historischem Industrie-Flair in Reinickendorf

Kategorie

Objektart
Büro/Praxen
Objekttyp
Bürofläche
Nutzungsart
Gewerbe
Vermarktungsart
Miete

Geografische Angaben

PLZ
13509
Ort
Berlin
Etage
1

Flächen

Bürofläche
ca. 508 m²
Anzahl Zimmer
10
Gesamtfläche
ca. 508 m²

Preise

Käuferprovision
Keine

Ausstattung

Boden
Teppichboden
Fahrstuhl
Kein Fahrstuhl

Beschreibung

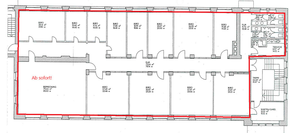
Verfügbarkeiten: ab sofort!
Warmmiete beträgt 18,5€/m² zzgl. MwSt!

Diese vielseitig nutzbaren Büroflächen befinden sich in einem Gewerbegebäude mit besonderem industriellem Charme aus dem Jahr 1939 im Berliner Bezirk Reinickendorf-Borsigwalde. Die Immobilie bietet eine flexible Raumaufteilung mit ca. 10 hellen und großzügigen Büroräumen , die sowohl einzeln als auch zusammenhängend angemietet werden können.

Die einzelnen Räumen variieren zwischen ca. 20 m² und über 50m² und lassen sich individuell an Ihre Bedürfnisse anpassen. Große Fensterfronten sorgen für viel Tageslicht und eine angenehme Arbeitsatmosphäre. Die Ausstattung umfasst Teppichboden, integrierte Deckenbeleuchtung sowie Steckdosenleisten für eine optimale technische Infrastruktur. Breite Flure, kleine Teeküchen und Sanitäreinrichtungen auf jeder Etage tragen zusätzlich zum Komfort bei.

Diese Gewerbefläche im 1.OG ist ideal für:
- Büros oder Agenturen
- Dienstleistungsunternehmen
- Bildungseinrichtungen, Integrationskurse oder Sprachkurse
- Seminar- oder Schulungszentren
- Start-ups und Co-Working-Spaces
- KEINE BEHERBERGUNGSBETRIEBE!

Ausstattung

- Helle Räume: Große Fensterfronten für viel Tageslicht
- Technische Infrastruktur: Steckdosenleisten und moderne Netzwerkanbindung, großer Serverraum
- Bodenbelag: gepflegter Teppichboden
- Beleuchtung: Integrierte Deckenbeleuchtung für optimale Lichtverhältnisse
- Sanitäreinrichtungen und Teeküchen: Auf jeder Etage vorhanden
- Breite Flure: Erleichtern den Zugang und die Nutzung
- Mieter- und Kundenparkplätze: stehen ausreichend zur Verfügung
- Nicht barrierefrei: Zutritt zu den Räumen ist nur über die Treppen möglich

Lage

Das Bürogebäude befindet sich in einem gut angebundenen Gewerbe- und Wohngebiet in Berlin-Reinickendorf.

ÖPNV-Anbindung:

- S-Bahn: S25/S26 (Bahnhof Eichborndamm) in wenigen Minuten erreichbar
- Buslinien: Mehrere Busverbindungen in direkter Umgebung
- Autobahn: Schnelle Anbindung an die A111 für optimale Erreichbarkeit
- Mieterparkplätze stehen auf dem Gelände zur Verfügung.

Sonstige Angaben

An den Kunden durch uns weitergeleitete Angaben und Informationen zu Objekten liegen die uns erteilten Auskünfte des Veräußerers bzw. Vermieters zugrunde. Die I@D Deutschland GmbH hat diese Angaben nicht geprüft. Vielmehr obliegt die Prüfung der Richtigkeit und/oder Vollständigkeit der Angaben allein dem Kunden. Unsere Angebote sind freibleibend. Mit Ihrer Anfrage bei uns und der folgenden Inanspruchnahme unserer Dienstleistungen kommt ein Maklervertrag mit der I@D Deutschland GmbH und Ihnen zustande. Sofern Sie aufgrund unserer Tätigkeit im Folgenden mit der Eigentümerseite einen Kaufvertrag über das Objekt wirksam abschließen, haben Sie an die I@D Deutschland GmbH die ortsübliche Maklercourtage zu zahlen. Im Falle des Abschlusses eines Mietvertrags haben Sie gem. § 2 Abs. 1a WoVermG keine Provision an die I@D Deutschland GmbH zu zahlen.

Energieausweis

Baujahr lt. Energieausweis
1939
Endenergieverbrauch
228 kWh/(m²a)
Endenergieverbrauch (Strom)
37 kWh/(m²a)
Endenergieverbrauch (Wärme)
228 kWh/(m²a)
Energieausweis
Verbrauchsausweis
Energieausweis gültig bis
30.11.2027
wesentlicher Energieträger
Gas

Ihre Anfrage zu der Immobilie „Flexible Büroflächen mit historischem Industrie-Flair in Reinickendorf“ (iad-4154)

Ihre Kontaktdaten

* Pflichtfelder

Ihre Ansprechpartnerin

Aigerim ABDYBALIYEVA

Frau Aigerim ABDYBALIYEVA

Immobilienberaterin

Tel.:
0176 376 3 7777
E-Mail:
aigerim.abdybaliyeva@iaddeutschland.de

In freier Handelsvertretung für iad Deutschland GmbH.

Amtsgericht: Bezirksamt Tempelhof-Schöneberg, Adresse der Aufsichtsbehörde: Tempelhofer Damm 165, 12099 Berlin

Weitere Immobilien

Moderne Gewerblehalle mit vielseitigen Nutzungsmöglichkeiten

ImmoNr: iad-2209 Büro/Praxen Gewerbezentrum Miete 13509 Berlin Anzahl Zimmer: 10

Attraktive Gewerberäume in Reinickendorf – zentral & bestens angebunden

ImmoNr: iad-2890 Büro/Praxen Bürofläche Miete 13409 Berlin Anzahl Zimmer: 2

Modern und kernsaniert! Gewerbehalle mit vielseitigen Nutzungsmöglichkeiten

ImmoNr: iad-4000 Büro/Praxen Gewerbezentrum Miete 13509 Berlin Anzahl Zimmer: 9

Büroflächen in Reinickendorf: Flexibel und Modern

ImmoNr: iad-4245 Büro/Praxen Bürofläche Miete 13509 Berlin Anzahl Zimmer: 1

Top-Lage in Reinickendorf/Wedding: Modernes Büro mit sehr guter ÖV-Anbindung nahe U Osloer Str.

ImmoNr: iad-4350 Büro/Praxen Bürofläche Miete 13409 Berlin Anzahl Zimmer: 4