*Keine Anmietung für Umnutzung/Kurzzeitvermietung!*
Im Erdgeschoss eines ruhigen, gut gepflegten Hauses erwartet Sie eine freundliche Bürofläche, die sich ideal für kleine Teams oder Solo-Selbstständige eignet. Die Lage ist citynah, aber angenehm abgeschirmt – perfekt, wenn Sie konzentriert arbeiten möchten.
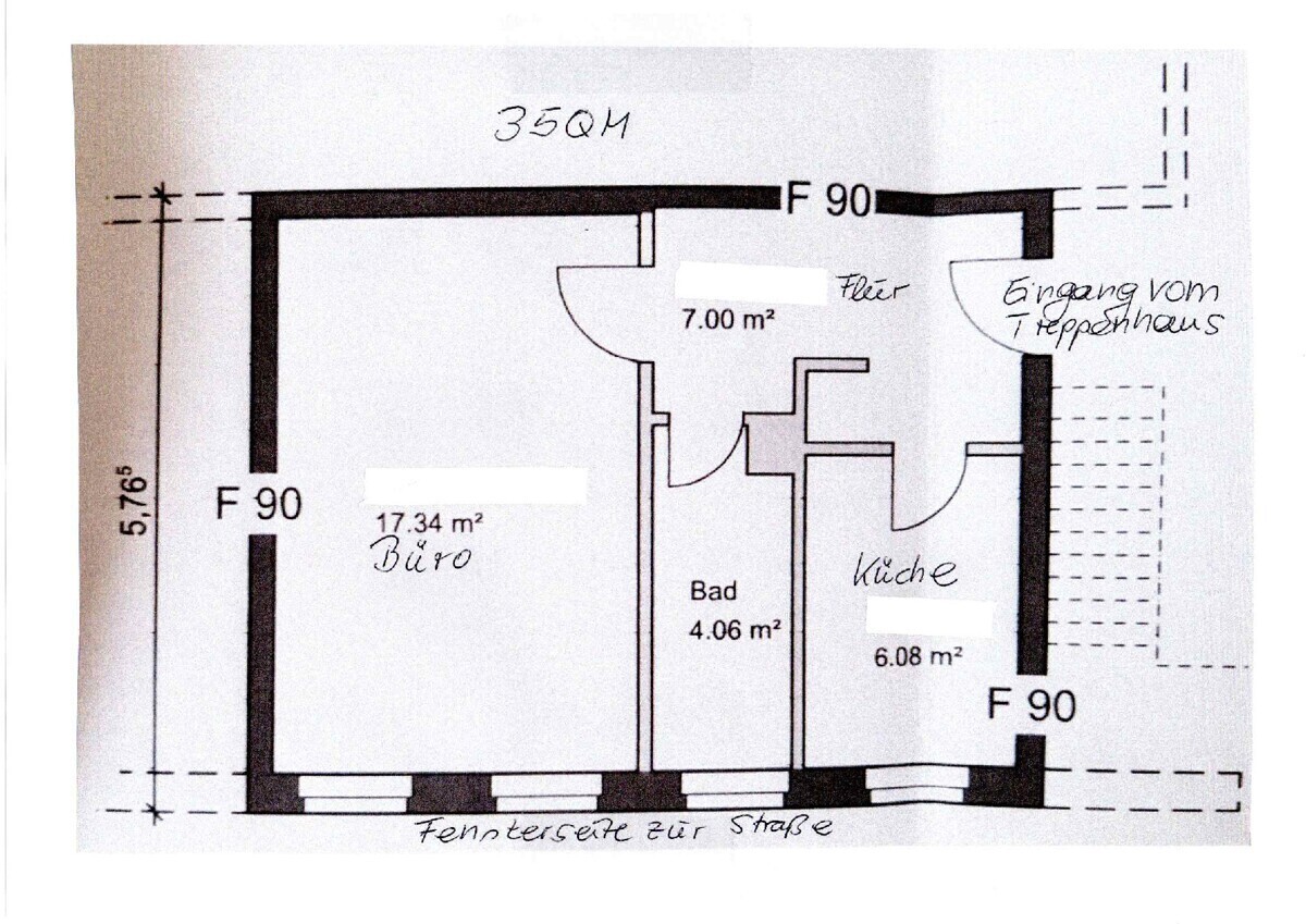
Das bietet die Fläche:
- rund 35 m², davon ca. 18 m² Büro – passend für 1– max. 2 Arbeitsplätze
- helles Büro mit ansprechendem Laminatboden
- praktische Küche inkl. Spüle, Schrank, Herd und Backofen
- modernes Bad mit Dusche, WC, Fenster und beleuchtetem Spiegel
- Flur, Küche und Bad mit pflegeleichten Fliesen
- Fenster mit Sichtschutz für maximale Privatsphäre
Besonders hervorzuheben: das seltene Feature eines voll ausgestatteten Badezimmers sowie der sehr gepflegte Zustand der gesamten Einheit.
Kategorie
- Objektart
- Büro/Praxen
- Objekttyp
- Bürofläche
- Nutzungsart
- Gewerbe
- Vermarktungsart
- Miete
Geografische Angaben
- PLZ
- 30159
- Ort
- Hannover / Mitte
Flächen
- Bürofläche
- ca. 35 m²
- Anzahl Zimmer
- 1
- Gesamtfläche
- ca. 35 m²
Preise
- Käuferprovision
- 1060
- Kaltmiete
- 420,00 €
Beschreibung
Ausstattung
- hochwertiger Laminatboden im Büroraum – für ein professionelles und stilvolles Ambiente
- Küche mit Spüle, Unterschrank und Herd mit Backofen – perfekt für die kleine Pause zwischendurch
- Bad mit Dusche, WC, Fenster, Spiegel mit Beleuchtung – praktisch und modern
- geflieste Böden in Flur, Küche und Bad – pflegeleicht und sauber
- blickdichte Fenster, die Privatsphäre garantieren
- Küche mit Spüle, Unterschrank und Herd mit Backofen – perfekt für die kleine Pause zwischendurch
- Bad mit Dusche, WC, Fenster, Spiegel mit Beleuchtung – praktisch und modern
- geflieste Böden in Flur, Küche und Bad – pflegeleicht und sauber
- blickdichte Fenster, die Privatsphäre garantieren
Lage
Die Bürofläche befindet sich in einer angenehm ruhigen Lage, nur wenige Schritte vom Zentrum, dem Hauptbahnhof und den Herrenhäuser Gärten entfernt. Dadurch profitieren Sie von kurzen Wegen, einer top Anbindung und einer Infrastruktur, die wirklich alles in Reichweite bietet.
Sonstige Angaben
Diese Bürofläche richtet sich ausschließlich an solvente Mieter, die eine zentrale Lage und gepflegte Ausstattung zu schätzen wissen.
Vor Besichtigung benötigen wir zwingend die Selbstauskunft (senden wir Ihnen zu) von Ihnen.
An den Kunden durch uns weitergeleitete Angaben und Informationen zu Objekten liegen die uns erteilten Auskünfte des Veräußerers bzw. Vermieters zugrunde. Die I@D Deutschland GmbH hat diese Angaben nicht geprüft.
Vielmehr obliegt die Prüfung der Richtigkeit und/oder Vollständigkeit der Angaben allein dem Kunden.
Unsere Angebote sind freibleibend.
Mit Ihrer Anfrage bei uns und der folgenden Inanspruchnahme unserer Dienstleistungen kommt ein Maklervertrag mit der I@D Deutschland GmbH und Ihnen zustande. Sofern Sie aufgrund unserer Tätigkeit im Folgenden mit der Eigentümerseite einen Mietvertrag über das Objekt wirksam abschließen, haben Sie an die I@D Deutschland GmbH die ortsübliche Maklercourtage zu zahle
Vor Besichtigung benötigen wir zwingend die Selbstauskunft (senden wir Ihnen zu) von Ihnen.
An den Kunden durch uns weitergeleitete Angaben und Informationen zu Objekten liegen die uns erteilten Auskünfte des Veräußerers bzw. Vermieters zugrunde. Die I@D Deutschland GmbH hat diese Angaben nicht geprüft.
Vielmehr obliegt die Prüfung der Richtigkeit und/oder Vollständigkeit der Angaben allein dem Kunden.
Unsere Angebote sind freibleibend.
Mit Ihrer Anfrage bei uns und der folgenden Inanspruchnahme unserer Dienstleistungen kommt ein Maklervertrag mit der I@D Deutschland GmbH und Ihnen zustande. Sofern Sie aufgrund unserer Tätigkeit im Folgenden mit der Eigentümerseite einen Mietvertrag über das Objekt wirksam abschließen, haben Sie an die I@D Deutschland GmbH die ortsübliche Maklercourtage zu zahle
Energieausweis
- Baujahr lt. Energieausweis
- 1958
- Endenergieverbrauch
- 95,81 kWh/(m²a)
- Energieausweis
- Verbrauchsausweis
- Energieausweis gültig bis
- 20.08.2034
- Energieeffizienzklasse
- C
- wesentlicher Energieträger
- Fernwärme
Ihr Ansprechpartner
Herr Arndt Schlüter
Immobilienberater
- Tel.:
- +49 176 13003753
In freier Handelsvertretung für iad Deutschland GmbH.
Landkreis Hildesheim, Bischof-Janssen-Str. 31, 31134 Hildesheim