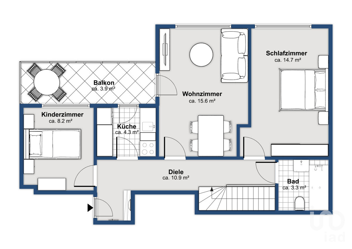
Diese charmante und vollständig sanierte 2,5-Zimmer-Wohnung befindet sich in einem gepflegten Mehrfamilienhaus aus dem Jahr 1970 und überzeugt durch eine durchdachte Raumaufteilung sowie eine ideale Lage im beliebten Stadtteil Harvesterhude. Mit einer Wohn- und Nutzfläche von ca. 65 m² bietet sie ein komfortables Zuhause für Singles, Paare oder Kapitalanleger.
Der helle Wohnbereich schafft eine angenehme Wohnatmosphäre und bietet direkten Zugang zum Balkon, der zusätzlichen Freiraum im Grünen ermöglicht. Die angrenzende Küche ist funktional geschnitten und bietet ausreichend Platz für individuelle Gestaltungsmöglichkeiten, mit Balkonzugang. Das modernisierte und hochwertige Duschbad ist zeitlos gestaltet und rundet den Wohnkomfort ab. Zusätzlich steht ein geräumiger Abstellraum zur Verfügung, der praktischen Stauraum für Haushaltsutensilien oder Vorräte bietet.
Zur Wohnung gehört außerdem ein Tiefgaragenstellplatz, der einen sicheren und komfortablen Parkplatz in der sonst belebten Gegend garantiert. Die Wohnung überzeugt nicht nur durch ihre durchdachte Aufteilung, sondern auch durch ihre hervorragende Lage mit optimaler Anbindung und erstklassiger Infrastruktur. Ein ideales Zuhause für alle, die das urbane Leben in Eppendorf mit einem angenehmen Wohnkomfort verbinden möchten.
Kategorie
- Objektart
- Wohnung
- Objekttyp
- Hochparterre
- Nutzungsart
- Wohnen
- Vermarktungsart
- Kauf
Geografische Angaben
- PLZ
- 20149
- Ort
- Hamburg
Flächen
- Anzahl Zimmer
- 2,5
- Wohnfläche
- ca. 61 m²
- Nutzfläche
- ca. 4 m²
- Anzahl Schlafzimmer
- 1
- Anzahl Badezimmer
- 1
- Anzahl Balkone
- 1
Preise
- Kaufpreis
- 770.000,00 €
- Käuferprovision
- 1,79 %
Ausstattung
Balkon
- Befeuerung
- Gas
- Fahrstuhl
- Personenaufzug
- Stellplätze
- 1 Tiefgaragenstellplatz
Beschreibung
Ausstattung
Die Wohnung besticht durch eine hochwertige Ausstattung, die modernen Wohnkomfort mit zeitloser Eleganz verbindet. Edles Echtholzparkett in den Wohnräumen sorgt für eine warme und einladende Atmosphäre, während stilvolle Marmorfliesen in der Küche und Bad einen Hauch von Exklusivität verleihen.
Besonders hervorzuheben ist der durchdachte Grundriss mit zwei Balkonzugängen: Sowohl die Küche als auch der Wohnbereich führen direkt auf den Balkon und ermöglichen so einen fließenden Übergang zwischen Innen- und Außenbereich. Das Schlafzimmer verfügt über ein beeindruckendes Panoramafenster mit Vierfachverglasung, das nicht nur für viel Tageslicht sorgt, sondern auch absolute Ruhe garantiert – perfekt für eine erholsame Nachtruhe.
Die moderne Einbauküche ist mit allen notwendigen Elektrogeräten ausgestattet und bietet ideale Voraussetzungen für kulinarischen Genuss. Das geschmackvolle Duschbad überzeugt mit einem durchdachten Spa-Konzept, das mit einer luxuriösen Regenwalddusche für besondere Wohlfühlmomente sorgt.
Im Untergeschoss befindet sich ein praktischer Abstellbereich, der zusätzlichen Stauraum für Gegenstände bietet, die nicht täglich benötigt werden. Die Zentralheizung übernimmt sowohl die Beheizung der Wohnräume als auch die Warmwasserbereitung und sorgt für eine effiziente und komfortable Energieversorgung. Abgerundet wird das Angebot durch den zur Wohnung gehörenden Tiefgaragenstellplatz, der eine sichere und bequeme Parkmöglichkeit bietet. Diese hochwertige Ausstattung macht die Wohnung zu einem perfekten Zuhause für anspruchsvolle Bewohner.
Besonders hervorzuheben ist der durchdachte Grundriss mit zwei Balkonzugängen: Sowohl die Küche als auch der Wohnbereich führen direkt auf den Balkon und ermöglichen so einen fließenden Übergang zwischen Innen- und Außenbereich. Das Schlafzimmer verfügt über ein beeindruckendes Panoramafenster mit Vierfachverglasung, das nicht nur für viel Tageslicht sorgt, sondern auch absolute Ruhe garantiert – perfekt für eine erholsame Nachtruhe.
Die moderne Einbauküche ist mit allen notwendigen Elektrogeräten ausgestattet und bietet ideale Voraussetzungen für kulinarischen Genuss. Das geschmackvolle Duschbad überzeugt mit einem durchdachten Spa-Konzept, das mit einer luxuriösen Regenwalddusche für besondere Wohlfühlmomente sorgt.
Im Untergeschoss befindet sich ein praktischer Abstellbereich, der zusätzlichen Stauraum für Gegenstände bietet, die nicht täglich benötigt werden. Die Zentralheizung übernimmt sowohl die Beheizung der Wohnräume als auch die Warmwasserbereitung und sorgt für eine effiziente und komfortable Energieversorgung. Abgerundet wird das Angebot durch den zur Wohnung gehörenden Tiefgaragenstellplatz, der eine sichere und bequeme Parkmöglichkeit bietet. Diese hochwertige Ausstattung macht die Wohnung zu einem perfekten Zuhause für anspruchsvolle Bewohner.
Lage
Die Immobilie befindet sich in einer der begehrten Wohnlagen Hamburgs, in Harvesterhude. Dieser Stadtteil vereint urbanes Leben mit hoher Lebensqualität und exzellenter Infrastruktur. Die Nachbarschaft ist geprägt von eleganten Altbauten, modernem Wohnkomfort und einem gehobenen Lebensstil. Die Verkehrsanbindung ist optimal – die U-Bahnstation Kellinghusenstraße mit den Linien U1 und U3 ist nur wenige Minuten entfernt und ermöglicht eine schnelle Verbindung in die Innenstadt.
Auch die Naherholungsmöglichkeiten sind hervorragend: Der Eppendorfer Park sowie die nahe gelegene Alster laden zu entspannten Spaziergängen, sportlichen Aktivitäten oder einfach zum Verweilen am Wasser ein. Zahlreiche Einkaufsmöglichkeiten, Wochenmärkte, Boutiquen und Feinkostläden prägen das Stadtbild und sorgen für eine erstklassige Versorgung direkt vor der Haustür. Exklusive Restaurants und gemütliche Cafés bieten kulinarische Vielfalt und ein lebendiges Stadtteilleben.
Familien, Paare und Singles profitieren von der hervorragenden Infrastruktur mit einer Vielzahl an Kitas und renommierten Schulen, während die Nähe zur Universitätsklinik UKE zusätzliche Sicherheit bietet. Auch das Freizeitangebot lässt keine Wünsche offen: Sportclubs, Fitnessstudios und kulturelle Einrichtungen sorgen für eine abwechslungsreiche und gehobene Lebensqualität. Diese Lage bietet ein einzigartiges Zusammenspiel aus urbanem Flair, Natur und exklusivem Wohnen – ein Wohnort, der Wünsche keine offen lässt.
Auch die Naherholungsmöglichkeiten sind hervorragend: Der Eppendorfer Park sowie die nahe gelegene Alster laden zu entspannten Spaziergängen, sportlichen Aktivitäten oder einfach zum Verweilen am Wasser ein. Zahlreiche Einkaufsmöglichkeiten, Wochenmärkte, Boutiquen und Feinkostläden prägen das Stadtbild und sorgen für eine erstklassige Versorgung direkt vor der Haustür. Exklusive Restaurants und gemütliche Cafés bieten kulinarische Vielfalt und ein lebendiges Stadtteilleben.
Familien, Paare und Singles profitieren von der hervorragenden Infrastruktur mit einer Vielzahl an Kitas und renommierten Schulen, während die Nähe zur Universitätsklinik UKE zusätzliche Sicherheit bietet. Auch das Freizeitangebot lässt keine Wünsche offen: Sportclubs, Fitnessstudios und kulturelle Einrichtungen sorgen für eine abwechslungsreiche und gehobene Lebensqualität. Diese Lage bietet ein einzigartiges Zusammenspiel aus urbanem Flair, Natur und exklusivem Wohnen – ein Wohnort, der Wünsche keine offen lässt.
Sonstige Angaben
An den Kunden durch uns weitergeleitete Angaben und Informationen zu Objekten liegen die uns erteilten Auskünfte des Veräußerers bzw. Vermieters zugrunde. Die I@D Deutschland GmbH hat diese Angaben nicht geprüft.
Vielmehr obliegt die Prüfung der Richtigkeit und/oder Vollständigkeit der Angaben allein dem Kunden.
Unsere Angebote sind freibleibend.
Mit Ihrer Anfrage bei uns und der folgenden Inanspruchnahme unserer Dienstleistungen kommt ein Maklervertrag mit der I@D Deutschland GmbH und Ihnen zustande. Sofern Sie aufgrund unserer Tätigkeit im Folgenden mit der
Eigentümerseite einen Kaufvertrag über das Objekt wirksam abschließen, haben Sie an die I@D Deutschland GmbH die ortsübliche Maklercourtage zu zahlen. Im Falle des Abschlusses eines Mietvertrags haben Sie gem. § 2 Abs. 1a
WoVermG keine Provision an die I@D Deutschland GmbH zu zahlen
Vielmehr obliegt die Prüfung der Richtigkeit und/oder Vollständigkeit der Angaben allein dem Kunden.
Unsere Angebote sind freibleibend.
Mit Ihrer Anfrage bei uns und der folgenden Inanspruchnahme unserer Dienstleistungen kommt ein Maklervertrag mit der I@D Deutschland GmbH und Ihnen zustande. Sofern Sie aufgrund unserer Tätigkeit im Folgenden mit der
Eigentümerseite einen Kaufvertrag über das Objekt wirksam abschließen, haben Sie an die I@D Deutschland GmbH die ortsübliche Maklercourtage zu zahlen. Im Falle des Abschlusses eines Mietvertrags haben Sie gem. § 2 Abs. 1a
WoVermG keine Provision an die I@D Deutschland GmbH zu zahlen
Energieausweis
- Baujahr lt. Energieausweis
- 1970
- Endenergieverbrauch
- 115 kWh/(m²a)
- Energieausweis
- Verbrauchsausweis
- Energieausweis gültig bis
- 30.09.2028
- Energieeffizienzklasse
- D
- wesentlicher Energieträger
- Gas
Ihre Ansprechpartnerin
Frau Petra LIEDTKE
Immobilienberaterin
- Tel.:
- +49 173 6427671
- E-Mail:
- petra.liedtke@iaddeutschland.de
In freier Handelsvertretung für iad Deutschland GmbH.
Aufsichtsbehörde: IHK Lübeck, Adresse der Aufsichtsbehörde: Fackenburger Allee 2, 23554 Lübeck